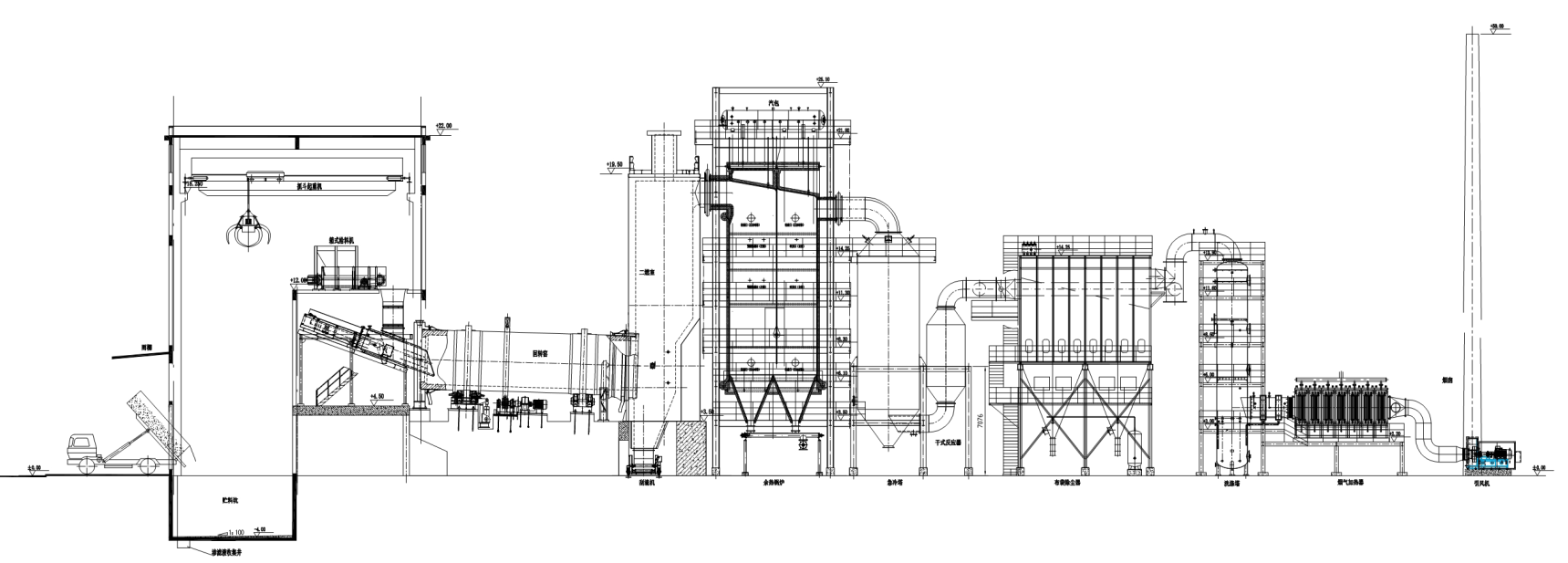
危險廢物是指具有危險性、特性的物料,其具有毒害性、爆炸性、易燃性、腐蝕性等一種或幾種以上的危害特性,國內外對危險廢物的處置相當重視,現行的危險廢物處理方式主要有焚燒及填埋兩種方式,其中回轉窯焚燒處理技術是目前處理危險廢物應用比較廣泛的技術,正成為危險廢物無害化處理的重要途徑。工藝流程:預處理及進料系統---回轉窯+二燃室燃燒系統---余熱回收系統---尾氣凈化處理系統---煙氣排放 焚燒系統:含料斗、回轉窯,二次燃燒室,及助燃和風機等輔助 設備。 余熱回收系統:含余熱鍋爐以及鍋爐輔助系統設備。 煙氣凈化系統:冷卻焚燒爐內的煙氣并除去有害的物質,并且達到排放要求后排放。含急冷塔,除塵器,洗滌塔、煙氣加熱器、活性 炭供給系統、除灰渣系統等。 煙氣排放系統:含引風機、煙囪等。
1、適用于我國的化工、農藥、油漆、塑料、橡膠等行業中所產生的廢液、廢渣、廢氣等;
2、其焚燒過程及焚燒后所排出的煙氣完全符合GB18484《危險廢物焚燒污染控制標準》和歐Ⅱ標準;
3、余熱回收,產生效益;
4、 DCS控制,自動化程度高。
預處理及進料系統---回轉窯+二燃室燃燒系統---余熱回收系統---尾氣凈化處理系統---煙氣排放 焚燒系統:含料斗、回轉窯,二次燃燒室,及助燃和風機等輔助 設備。 余熱回收系統:含余熱鍋爐以及鍋爐輔助系統設備。 煙氣凈化系統:冷卻焚燒爐內的煙氣并除去有害的物質,并且達到排放要求后排放。含急冷塔,除塵器,洗滌塔、煙氣加熱器、活性 炭供給系統、除灰渣系統等。 煙氣排放系統:含引風機、煙囪等。

部分案例
![]() | ![]() | ![]() |
| 山西危廢回轉窯項目 | 廣西酸洗污泥陶粒項目 | 新疆碧頃油泥煅燒項目 |